产品展示
当前所在位置: 首页 » 产品中心 » 伸缩接头 » CC2F型可拆双法兰松套传力补偿接头

产品分类

loading

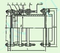
CC2F型可拆双法兰松套传力补偿接头

状态:

设备简介及特点: 可拆式双法兰传力接头安装在管道上后,根据所需的伸缩距离进行限位,拧紧螺母,弹性密封圈在螺母压盖的作用下依靠相互斜度,紧压在管子外圈起密封和链接作用,主要和管道阀门链接,不但起到管道补偿作用,更方便了阀门的维修及跟换。

工艺图:


1

2


技术参数:


3


    注:本尺寸符合GB/T12465-2002标准
 


上一条: 
下一条: 
logo-top
电话:
0523-88691356 88698068
电子邮件:
 地址:
泰州市姜堰娄庄镇工业园
关于我们
江苏亚太波纹管有限公司建于1985年,主要从事补偿器(膨胀节)、非金属补偿器、恒力支吊架、弹簧支吊架、金属软管、非金属膨胀节的设计、开发、制造、销售及相应服务。
订阅

版权所有@ 江苏亚太波纹管有限公司       苏ICP备2021010142号-1